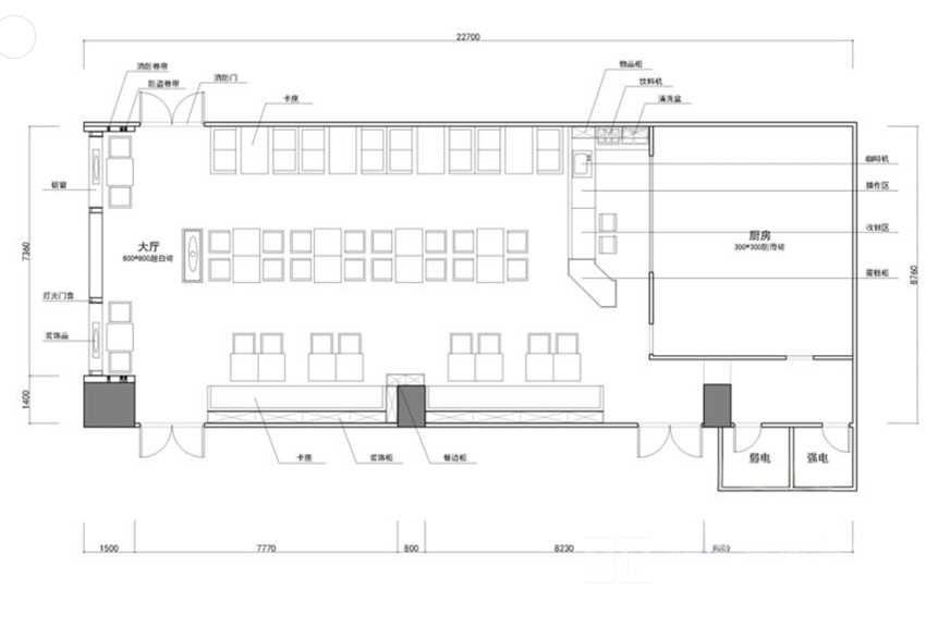
意享天地(环球店)
日期:2024-08-22 / 人气: / 作者:四维空间设计
面 积:350平米
类 型:餐饮
主要材料:软木,雪花白大理石皮革等
风格定位:温馨时尚




类 型:餐饮
主要材料:软木,雪花白大理石皮革等
风格定位:温馨时尚




热门内容 Popular Content
- 会所设计重点02-03
- 酒店的八种类型12-11
- 个性家居设计-清水之家12-11
- 意境东方-最美新中式12-11
- 度假酒店设计流程(二)设计团队12-11
- EAST-亚洲风餐厅设计12-11
最新内容 Latest Content
- 噪音对办公有哪些影响?12-19
- 办公室设计第一要务是什么?12-19
- 开放式办公区的优缺点12-18
- 二次装修需要消防报审吗?12-18
- 总经理办公室设计的几个重点12-17
- 常见的几种办公室吊顶方式12-15

